Boot configuration settings for TWR-LS1021A

cancel
Showing results for 
Show  only  | Search instead for 
Did you mean: 

Boot configuration settings for TWR-LS1021A

3,825 Views
rameshasp
Contributor IV

Hello Sir,

Currently i am working on our custom board using LS1021AXN7HNB processor i am not getting proper boot configuration settings for NOR flash and SD card flash.

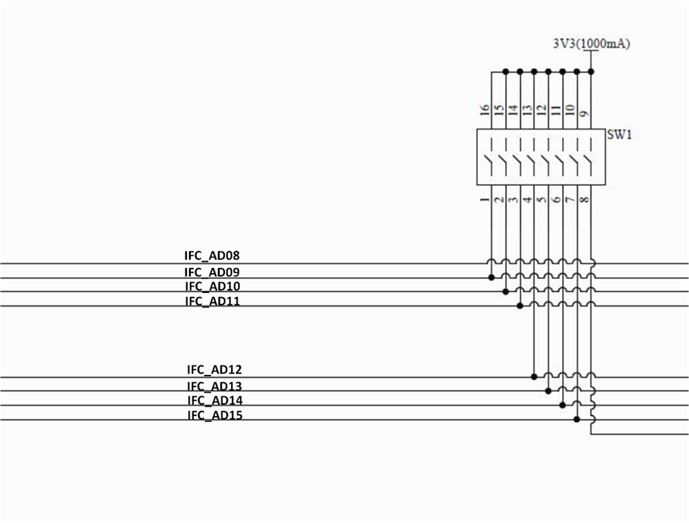
Below i have custom board boot switch images for your reference.

pastedImage_1.png

Could you please help as soon as possible.

Advance thank you!.

Ramesha S P

Labels (1)
Tags (1)
8 Replies

3,728 Views
ufedor
NXP Employee
NXP Employee

Provided schematics is incorrect.

Consider that when a switch is closed then corresponding IFC_AD signal is directly connected to the 3.3V supply and cannot be driven by the processor.

3,729 Views
rameshasp
Contributor IV

Thanks for your reply Ufedor,

You mean to say our schematic is incorrect.

Please below attached schematic boot configuration settings image for your, could you please help me which area we need to explore more.

pastedImage_1.jpgpastedImage_2.jpg

Thanks In Advance,

Ramesha S P

0 Kudos
Reply

3,729 Views
ufedor
NXP Employee
NXP Employee

Complete schematics review is possible only by a FAE request.

Even partial review is possible only if the schematics is provide as searchable PDF - i.e. not pictures.

3,729 Views
rameshasp
Contributor IV

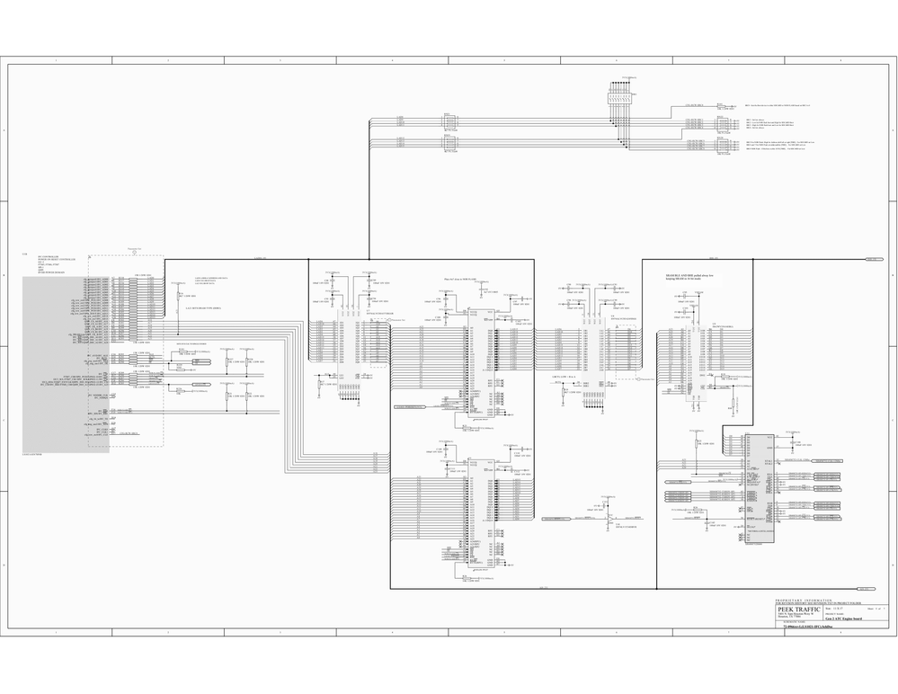
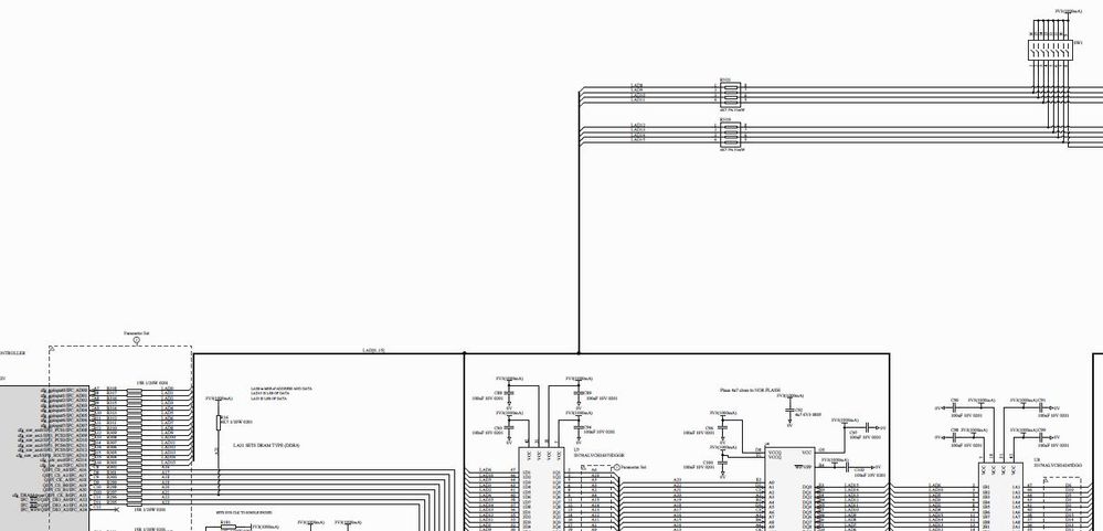
Hello Ufedor,Rev-L_NOR_Flash-1.png

Here i have attached complete schematic pdf file as you requested.

Please review and let me know if we missed anything in our design.

If you provide your email id i can send you full schematic pdf file.

Advance Thanks,

Ramesha S P

0 Kudos
Reply

3,729 Views
ufedor
NXP Employee
NXP Employee

> Here i have attached complete schematic pdf file as you requested.

There is no PDF.

3,729 Views
rameshasp
Contributor IV

I Could not attach pdf file so i have converting to png and attached.

0 Kudos
Reply

3,729 Views
ufedor
NXP Employee
NXP Employee

Please understand:

Complete schematics review is possible only by a FAE request.

For a partial review you can create a Technical Case:

https://support.nxp.com/ 

0 Kudos
Reply

3,729 Views
rameshasp
Contributor IV

Okay i will create new case and ask queries. 

Thank you.

Ramesha S P

0 Kudos
Reply